Start  |  Anfahrt  |  Kontakt / Impressum  |  Disclaimer

 

D i p l . - I n g .   J ö r g   R i b b e c k e

Ingenieurbüro für mechanische Fassadentechnik , Sonnenschutz , Photovoltaik , Gebäudedesign

 
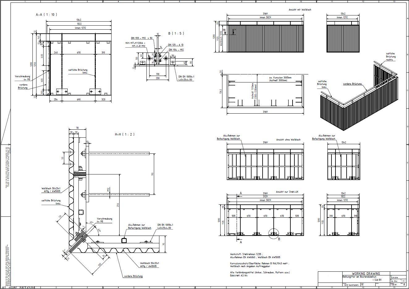
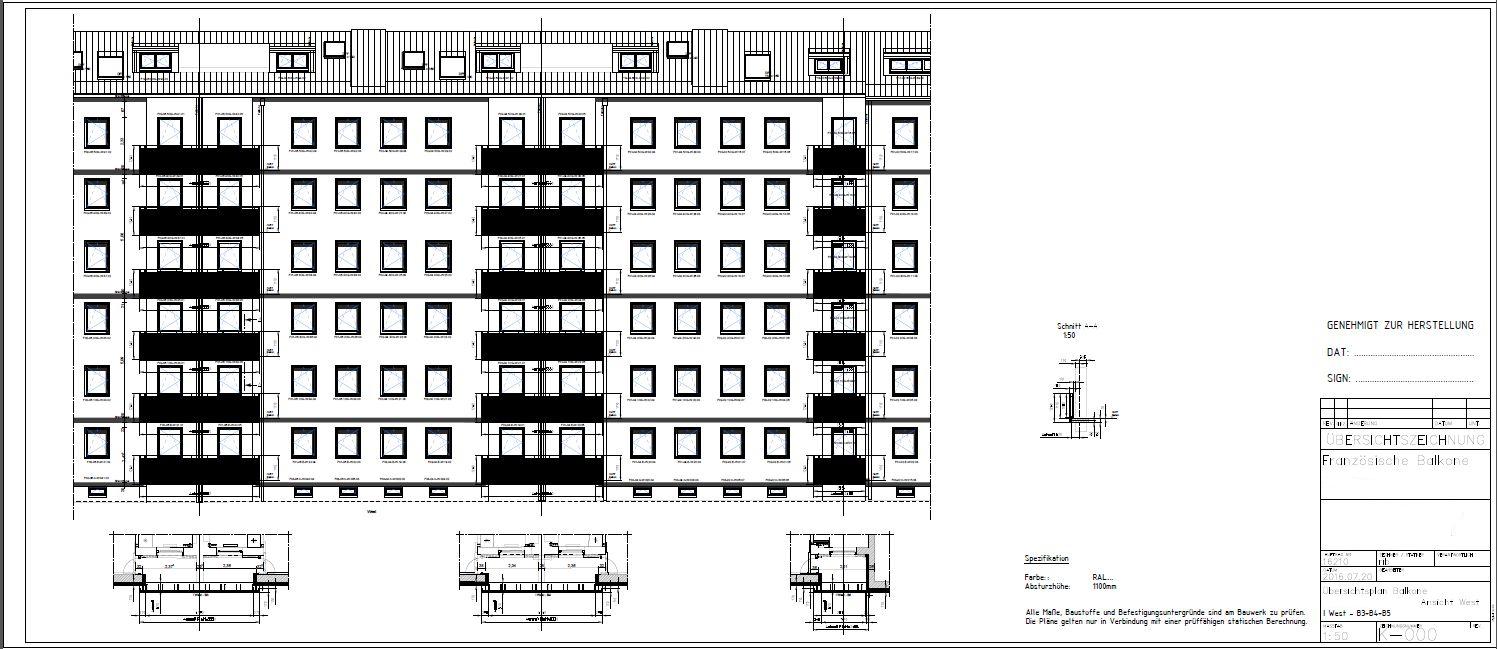
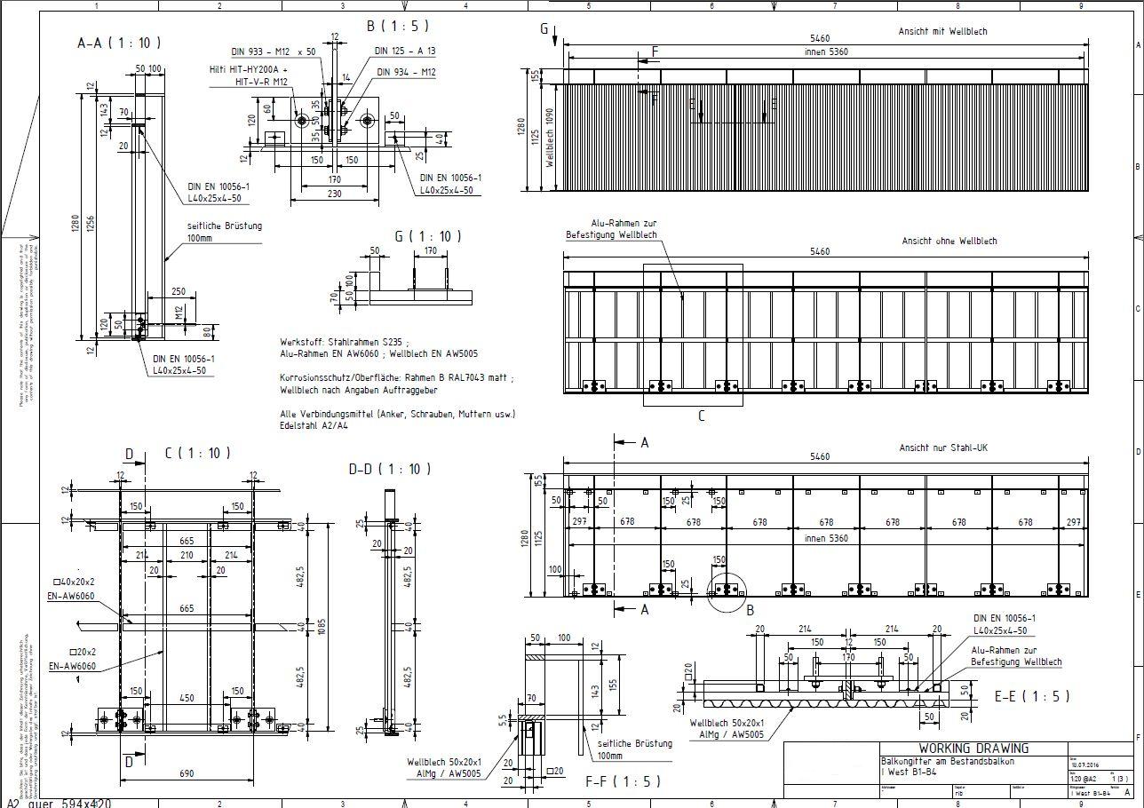
Balkone

Dieses in München ausgeführte kombinierte Neubau- und Sanierungs-Projekt beinhaltete die Planung incl. Fertigungsplanung von 114 Balkonen, Loggiengeländern, Geländern für Dachterrassen und Trennwänden.

Die Bauteile sind als geschweißte Stahlkonstruktion ausgeführt. Die Balkone sind teils mit Wellblech Welltec W-20/50 AlMg / EN-AW5005 verkleidet.





Bilder :
Dipl.-Ing. J.Ribbecke
              

         

 
 

copyright© Dipl.-Ing. Jörg Ribbecke   -