Start  |  Anfahrt  |  Kontakt / Impressum  |  Disclaimer

 

D i p l . - I n g .   J ö r g   R i b b e c k e

Ingenieurbüro für mechanische Fassadentechnik , Sonnenschutz , Photovoltaik , Gebäudedesign

 
 
Raffstorekasten; kompl.

Raffstorekasten

Fassadenpaneel

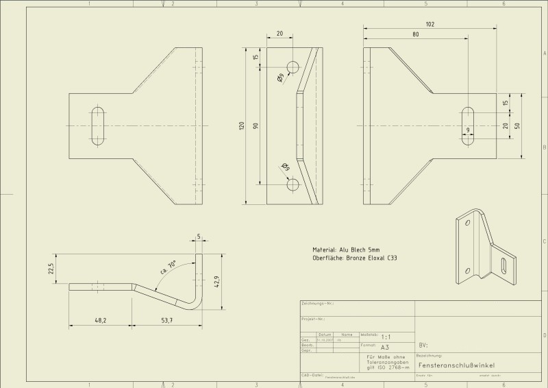
Befestigungswinkel

Bilder : Dipl.-Ing. J.Ribbecke

Produktentwicklung Blechteile

Bei den hier gezeigten Blechteilen handelt es sich um Teile hinterlüfteter Blechfassaden.

Durch den Einsatz von Inventor-3D-CAD können komplizierte Blechteile entworfen, statisch berechnet, visualisiert und detailliert werden und anschließend ohne Datenverluste einem qualifiziertem Blechverarbeiter zur Fertigung übergeben werden.

Auch Änderungen lassen sich in einem parametrischem CAD-Modell schnell umsetzen.

 
 
 

copyright© Dipl.-Ing. Jörg Ribbecke   -   02.09.2015